Profielen
Kunststof kozijnen bestaan uit kozijn profielen, deze worden op maat gezaagd en geassembleerd om tot een kozijn te komen.

Een profiel (en dus ook kunststof kozijn) heeft verschillende kenmerken. De belangrijkste kenmerken zijn inbouwdiepte, randafwerking en aantal kamers.
Inbouwdiepte
De inbouwdiepte is de maat wat tegen de wand wordt geplaatst. Kozijnprofielen kunnen verschillende inbouwdieptes hebben. De meest voorkomende inbouwdieptes zijn 70mm en 120mm. De inbouwdiepte is bepalend voor het aanzicht van het kozijn en hoe deze gemonteerd kan worden.

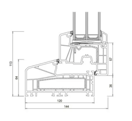
120mm blokprofiel
We beginnen met het 120mm profiel omdat dit een profiel is die vaak in Nederland gebruikt wordt. Andere benamingen voor dit profiel zijn ook: Hollands profiel, Nederlands (NL) profiel, renovatieprofiel of blokprofiel. Bij renovaties en het vervangen van houten kozijnen, leent dit profiel zich uitstekend uit om de plek van het oude kozijn te bedekken omdat de inbouwdiepte dikker is. Hierdoor heb je minder afwerking aan de binnenzijde. Ook zal dit profiel de spouwmuur (ongeveer 5-7cm) beter overbruggen dan een smaller profiel.


Een ander voordeel van het 120mm profiel is de mogelijkheid om deze met een HVL-verbinding uit te voeren. Bij kunststof kozijnen zijn de hoekverbindingen normaal diagonaal, bij een HVL-verbinding zijn deze recht, net zoals een houten kozijn. In combinatie met een kleurfolie met houtnerf lijkt het kozijn bijna 1-op-1 op een houten kozijn.


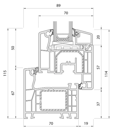
70mm profiel vlakprofiel
Het 70mm profiel is een smaller profiel waardoor deze moderner en vlakker oogt dan het 120mm blokprofiel. Grootste voordeel van dit kozijn is dat het voordeliger is. Nadeel is dat bij renovaties vaak extra afwerking aan de binnenzijde nodig is, omdat het 70mm profiel de oude plek vaak niet helemaal bedekt. Bij nieuwbouw zal dit vaak geen probleem zijn, omdat de binnenwanden vaak nog gestukeerd moeten worden. Ook is geen HVL-verbinding mogelijk bij het 70mm profiel. Toch is het 70mm profiel een uitstekende keuze.


Randafwerking
Kozijnen heb je met een stomp profiel en met een aanslag profiel (andere woorden voor aanslag zijn o.a. intrek, renovatiesponning, opdek)
Stomp profiel
Een stomp profiel is van de zijkant vlak, hierbij zijn de binnen- en buitenmaat gelijk aan elkaar. Dit profiel wordt gebruikt om tussen de muren in te bouwen.
Aanslagprofiel
Bij een aanslag profiel heeft het kozijn een extra lip met rubber. Deze lip valt over de gevel of over het stelkozijn. Voordeel van een aanslagprofiel is dat deze door de lip met rubber goed afgedicht wordt aan de buitenzijde. Bij een stomp profiel zal er eerst nog compriband of kit gebruikt moeten worden voor de afdichting van buiten. Een aanslagprofiel wordt vaak toegepast bij dakkappellen, woonwagen, chalets en montage met stelkozijn.
Een ander bijkomend voordeel van een aanslagprofiel is dat de inbouwdiepte hierdoor smaller wordt. Bij woonwagens is de wand vaak niet erg dik (5-6cm) en zal een stomp 70mm profiel net iets te dik zijn. Bij een aanslag valt een gedeelte over de gevel waardoor je inbouwdiepte smaller wordt. In dit geval zal er nog 1,5cm af gaan door de aanslag, waardoor je inbouwdiepte 55mm wordt.


Kamers
Kozijnprofielen bestaan uit kamers, een kamer is een met lucht gevuld segment. Dit heeft invloed op de isolatie, stabiliteit en weerstand tegen vervorming van het kozijn. De meeste kozijnprofielen hebben 5-kamers, echter zijn er ook tussen die 6 of 7 kamers hebben. Hoe meer kamers, hoe meer het kozijn isoleert.

De grote kamer wordt gebruikt om staalversterking in het kozijn te plaatsen. Enkel kunststof is niet sterk genoeg om stabiliteit en sterkte te garanderen voor het kozijn. . Ze worden rond de omtrek van de raamkozijnen en de vleugels geplaatst. Op basis van hun vorm maken wij onderscheid tussen gesloten en open verstevigingen. Bij grotere constructies zal de dikte van het staal dikker zijn. Bij deuren is dit standaard ook dikker.

